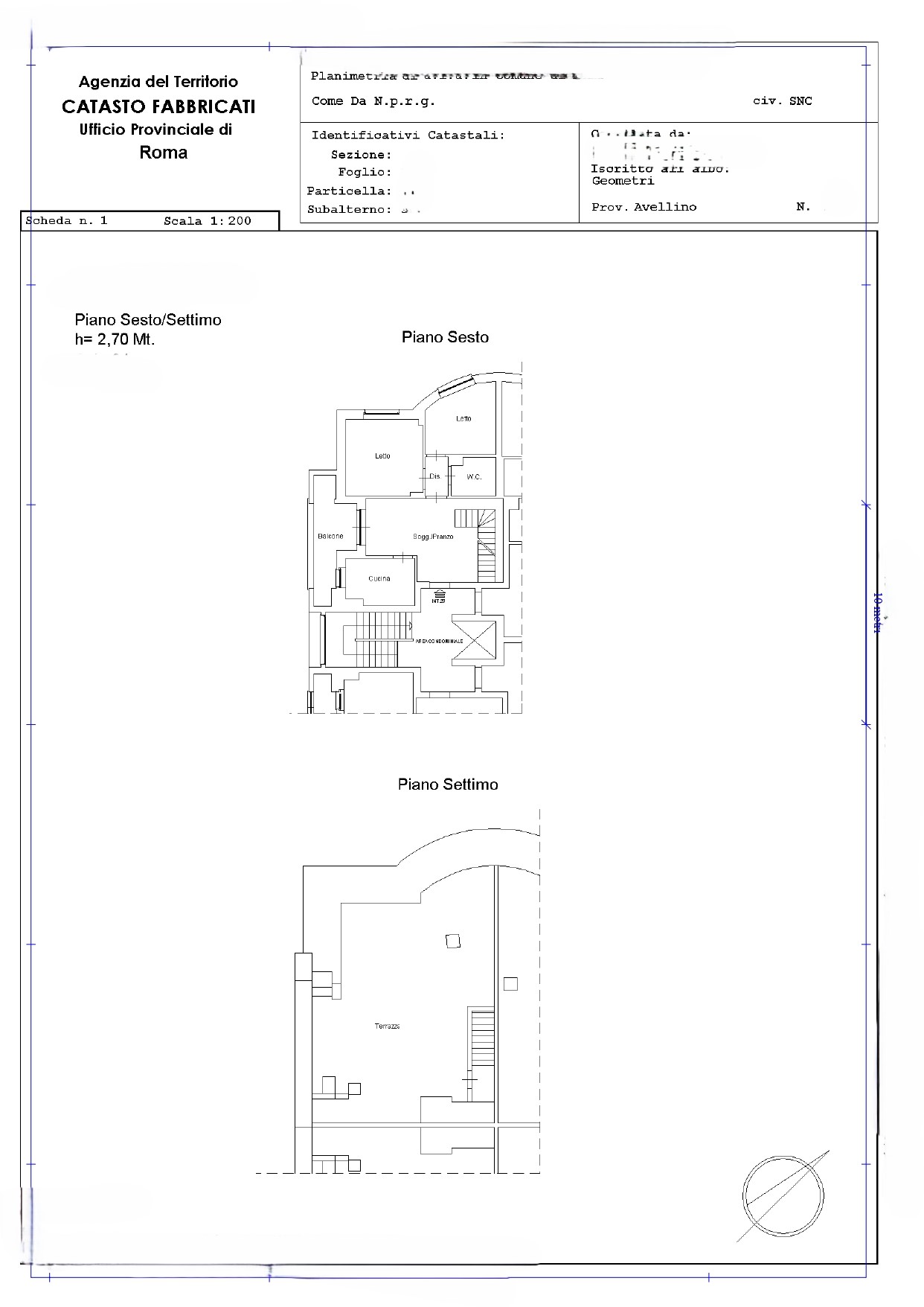
Nel complesso residenziale Le Querce di Torresina in contesto silenzioso nel verde, in zona servita da diverse attività commerciali e trasporti pubblici, proponiamo la locazione di un appartamento in buono stato in palazzo in cortina con ascensore. L’immobile non è arredato ed è posto al piano sesto ed ultimo di una palazzina di sei ed è composto da ingresso, soggiorno, cucina, due camere, bagno, balcone a livello e terrazzo sovrastante. Riscaldamento autonomo. Prezzo di vendita Euro 147.000,00. Per maggiori info ed appuntamenti non esitate a contattarci. I servizi offerti presso la nostra sede sono i seguenti: -Vendite ed affitti d’immobili residenziali e commerciali; -Consulenze Immobiliari; -Valutazioni immobiliari gratuite; -Assistenza tecnica, legale e notarile -Geometra in sede; -Assistenza tecnica catastale; -Certificati energetici (APE); -Pratiche edilizie; -Preventivi per ipotesi di progetto e ristrutturazioni . L’immobile è visionabile previo appuntamento contattando il numero telefonico 06.32609151 oppure inviando una mail a info@interarkgroup.it includendo nella mail nome completo e numero di telefono al quale essere contattati per fissare un appuntamento.

Le nostre proposte: vendita, affitto e nuove costruzioni

Concept & Design: Marzia Bianchi – Webdesign: Fabio Folgori